Factory Service Repair Manual For Caterpillar 287C Multi Terrain Loader. Systems Operation, Testing and Adjusting, Troubleshooting, Specifications, Disassembly and Assembly Procedures included almost in all sections. This manual is used by dealers.
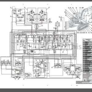
Digital PDF format, searchable and bookmarked. Wiring Schematic, Hydraulic Schematic, Torque specifications.
PDF Manual:
Instant download – You will receive the link for download on your email immediately after payment.
Lifetime PDF and access to download (by request)
Compatible with Windows, Mac, IOS, Android and other systems
Searchable Text and Built-in index for instant information search
Bookmarks
Printable – pages or entire manual
Zoomable – detailed exploded diagrams, picture
Models
Caterpillar 287C Multi Terrain Loader (3044C Engine)
MAS00001-UP
Contents
Wiring Schematics
Hydraulic Schematics
Air Inlet And Exhaust System
Basic Engine
Cooling System
Electrical And Starting System
Engine Arrangement
Frame And Body
Fuel System
Hydraulic System
Implements
Lubrication System
Machine Arrangement
Operator Station
Power Train
Service Equipment And Supplies
Torque Specifications
Undercarriage
Work Tools








Reviews
There are no reviews yet.