Factory Service Repair Manual For Ford New Holland 790 Harvester. Troubleshooting, removal, disassembly, installation, repair procedures as well as machine specifications, tightening references, maintenance, inspection.
PDF Manual:
Instant download – You will receive a link for download on your email immediately after payment.
Lifetime access for download (by request)
Compatible with Windows, IOS, Android and other systems
Searchable Text and Built-in index for instant information search
Bookmarks
Printable – pages or entire manual
Zoomable – detailed exploded diagrams, picture
Models
Ford New Holland Harvester
790
Contents
Telescoping PTO
Main Drive Gearbox
Electric Clutch Drive
Reversing Gearbox
Feed Rolls
Cutterhead
Sharpener
Shear Bar And Scraper
Blower
Wheels And Axles
Hydraulic Components
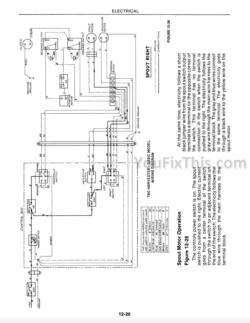
Electrical







